Commissariat du Centenaire,
Seraing

Commissariat du Centenaire

Un marché public, deux sites.

Nous avons eu le plaisir de remporter conjointement les marchés du "Commissariat, mairie de quartier et logements du Pairay" et "Commissariat du Centenaire".

Les deux programmes étaient identiques et sont issus d'un même plan afin de diminuer les délais de construction et d'étude. Ce commissariat est en quelque sorte une représentation extramuros de son jumeau du Pairay. Certaines fonctions, les espaces extérieurs et les parements diffèrent compte tenu de la relation avec le contexte.

Le site se trouve le long d'une avenue, à côté de bâtiments collectifs et en face d'une place.

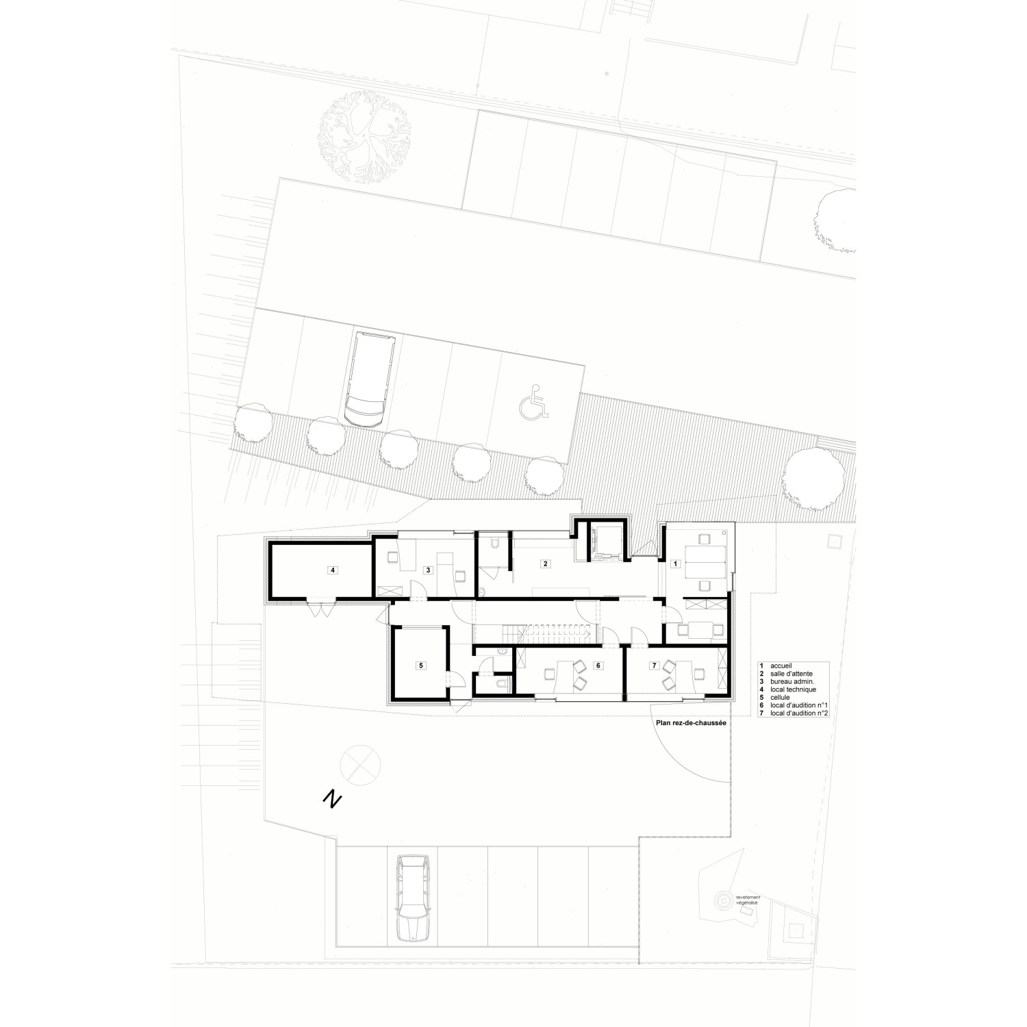
Le bâtiment s'implante sur le côté de la parcelle pour libérer un espace parking arboré dialoguant avec la place existante. Un espace extérieur réservé au commissariat est proposé de l'autre côté du bâtiment, dissimulé derrière une grande palissade. Les fonctions sont réparties sur trois niveaux selon leurs besoins d'accessibilité au public. Les locaux semi-ouverts sont situés au rez-de-chaussée. 

Les bureaux du personnel sont au 1e étage. Les pièces collectives et les locaux techniques au 2ème. Des trémies généreuses relient les étages en une artère lumineuse où les circulations ouvertes s'y retrouvent. 

Localisation / Seraing

Maitre d'ouvrage / Zone de police Seraing-Neupré