Habitation sur la prairie,
Villers-le-Bouillet

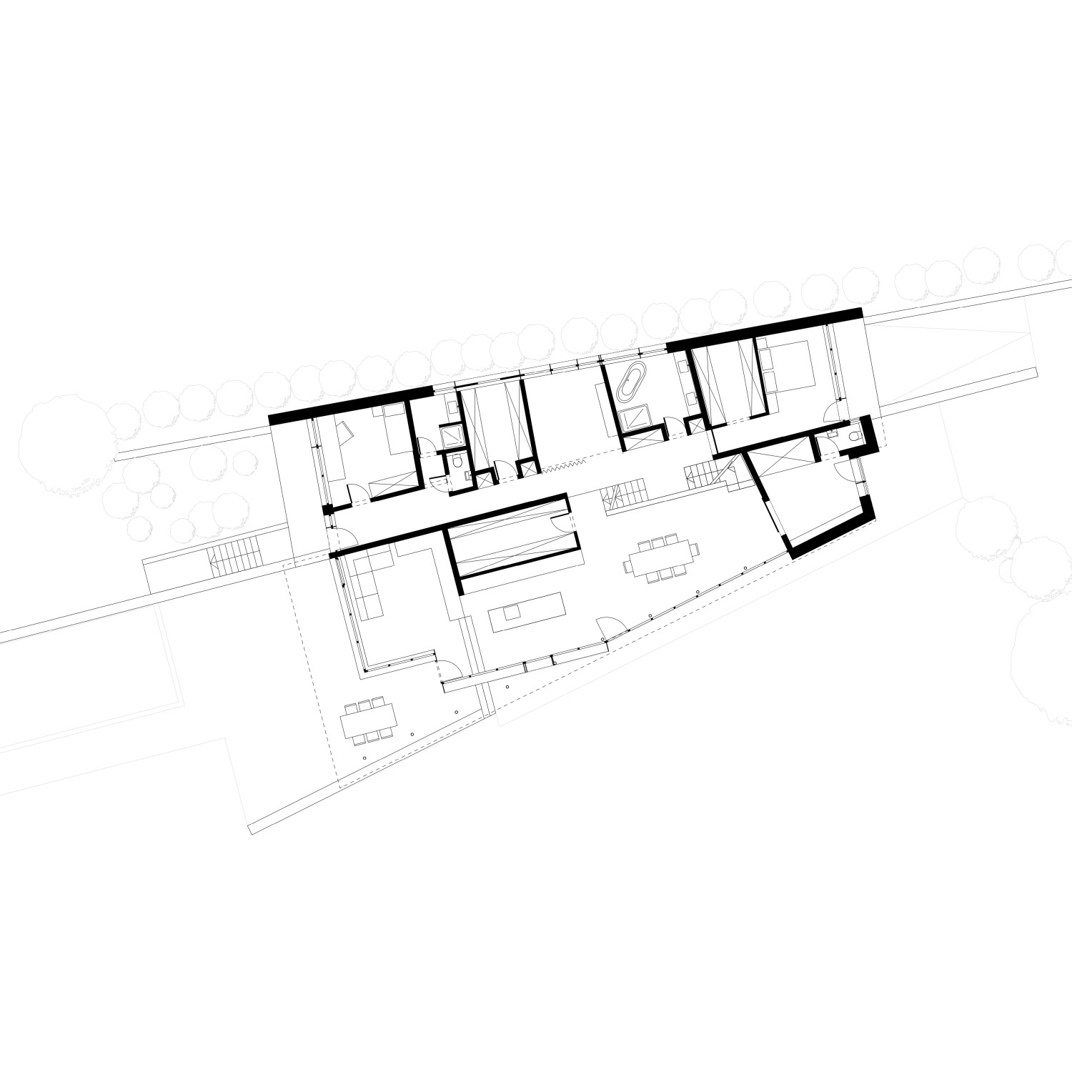
Habitation sur la prairie

Avec le travail de Richard Serra en tête, sur un terrain long et étroit, les vues sur la campagne sont admirables. 

La maison est composée de trois grands voiles de béton et d'une série de fines colonnes supportant une première toiture plate. 

Le plan constitue une promenade progressive en relation avec le paysage et le jardin. Une grande boite en bois, contenant les espaces nuit, est réhaussée d'un demi-niveau. Ces espaces sont tantôt en relation avec l'espace de vie, tantôt protégés de celui-ci. 

Une série de terrasses permet aux utilisateurs de profiter du soleil, de regarder le jardin ou le paysage lointain. 

Localisation / Villers-le-Bouillet